ID CP3009839

Apartament 3 camere 65,91 mp, terasă 21 mp, Sopor

ID CP3009839

207,853 € + 21% TVA

Apartament cu 3 camere de vânzare
Gheorgheni, Cluj-Napoca
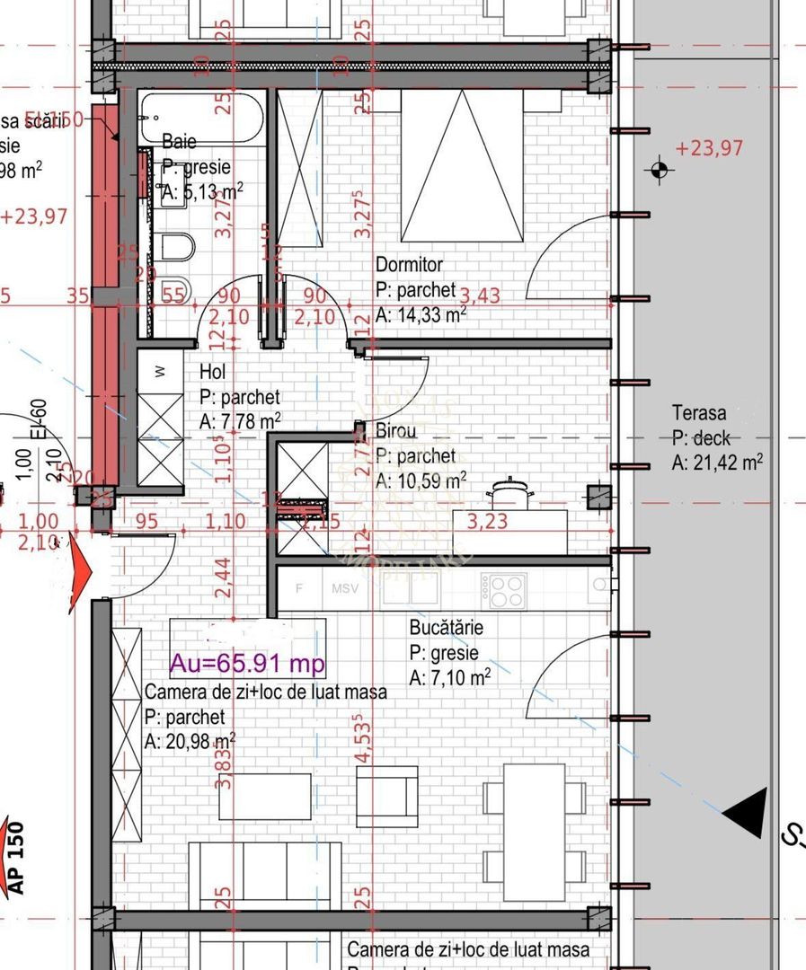
65.91 mp
2025

Vă propunem spre vânzare un apartament modern, situat în cartierul Sopor, în imediata apropiere a Bazei Sportive Gheorgheni, într-un ansamblu rezidențial nou.

📐 Suprafața utilă: 65,91 mp

🌿 Terasă generoasă: 21,42 mp

🏢 Etaj: 7

🏠 Compartimentare inteligentă:

Living spațios + loc de luat masa

Bucătărie (separată parțial)

Dormitor matrimonial

Birou / cameră multifuncțională

Baie

Hol

✔ Acces pe terasa generoasă din zona de zi

✔ Biroul poate fi amenajat ca al doilea dormitor

✔ Compartimentare practică – ideală atât pentru locuit, cât și pentru investiție

✨ Avantaje:

Etaj 7 – priveliște deschisă și lumină naturală excelentă

Terasă mare, perfectă pentru relaxare

Spații vitrate generoase

Posibilitate amenajare după propriul gust

Potențial de transformare în apartament cu 3 camere

Zonă în plină dezvoltare

🛠 Stadiu:

Apartamentul se predă semifinisat, oferind libertatea de a-l personaliza complet.

📍 Locație:

Sopor zonă modernă și căutată

Aproape de Baza Sportivă Gheorgheni și Iulius Mall

Acces facil către oraș - Linia 44

PRET: 207.853 euro+ 21% TVA

Contact UNGUREANU MIHAELA 0755.455.548

Citește mai mult

  • Tip apartament
    Apartament
  • Compartimentare
    Semidecomandat
  • Număr camere
    3
  • Dormitoare
    2
  • Număr bucătării
    1
  • Număr băi
    1
  • Etaj
    7
  • Suprafață utilă
    65.91 mp
  • Suprafață construită
    87.33 mp
  • Suprafață terasă
    21.42 mp
  • Disponibilitate
    Imediat
  • Confort
    Lux
  • Stare interior
    Nou
  • Număr terase
    1
  • Imobil
    Bloc de apart.
  • Stadiu construcție
    Semifinisat
  • An construcție
    2025
  • Construcție nouă
    Da
  • La revânzare
    Da
  • Tip construcție
    Beton
  • Număr etaje clădire
    7
  • Număr subsoluri
    2
  • Are demisol
    Da

Facilități

Apă
Apometre
Canalizare
CATV
Centrală proprie
Contor electric
Contor gaz
Curent
Gaz
Geamuri cu izolație fonică
Iluminat stradal
Izolație exterioară
Lift
Loc de joacă copii
Mijloace de transport în comun
Străzi asfaltate
Ușă intrare PVC
Vedere spre oraș
Mihaela Ungureanu - Lionas Imobiliare
Mihaela Ungureanu
Agent imobiliar

0755455548


Solicită chiar acum o vizionare
Telefon
Sună acum Solicită vizionare
Necesare:

Site-ul nu poate funcționa corect fără aceste cookie-uri. Vezi cookie-urile

Statistică:

Strângem statistici anonime despre voi, vizitatorii unici, pentru a vă îmbunătăți experiența dumneavoastră. Vezi cookie-urile

Marketing:

Pentru a ne promova mai eficient serviciile noastre, folosim cookies pentru a vă identifica și a vă oferi proprietăți și servicii personalizate. Vezi cookie-urile

Acest site folosește cookies, află detalii. Alege ce tipuri de cookies dorești să permitem: