ID CP2861394

Apartament Nou 4 camere 115 mp-curte proprie 85mp- Zona OMV Libertatii

ID CP2861394

130,000 € + 21% TVA

Apartament cu 4 camere de vânzare
Sud, Bistrita
115 mp
2024

Va oferim spre vanzare un apartament Nou cu 4 camere in Zona OMV Libertatii.

Apartamentul se vinde finisat la cheie incluzand parchet, usi de interior, centrala si baia utilata.

- constructie noua tip duplex din anul 2025

- materialele folosite sunt de inalta calitate

- suprafata utila de 115 mp

- situat pe 2 nivele (Parter + Etaj)

- beneficiaza de curte proprie cu suprafata de 85 mp

- bucataria cu livingul sunt foarte spatioase avand o suprafata de 37,17 mp

- unul dintre dormitoare este prevazut cu dressing

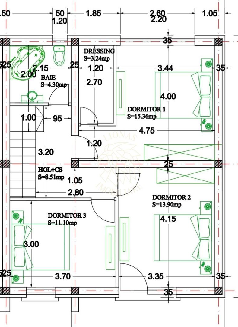
Compartimentare:

Parter: bucatarie open space cu living, camara, baie, hol

Etaj: 3 dormitoare, dressing, baie, hol

- usi interior pline

- incalzire prin pardoseala nemteasca

- parchet SPC special pentru incalzire in pardoseala si trafic intens

- tamplarie PVC Salamander, profil 7 camere, 3 randuri și feronerie Roto

- glafuri interior si exterior de marmura

- izolatie termica cu polistiren de 15 cm

- decorativa premium

- riflaje moderne

Pretul este 130,000 € + 21% TVA

Pentru mai multe detalii sau pentru programarea unei vizionari, va stam cu drag la dispozitie,

Sorin Cont 0732008845

Echipa LIONAS Imobiliare!

Citește mai mult

  • Tip apartament
    Apartament
  • Compartimentare
    Decomandat
  • Număr camere
    4
  • Dormitoare
    3
  • Număr bucătării
    1
  • Număr băi
    2
  • Geam la baie
    Da
  • Etaj
    Parter, 1
  • Suprafață utilă
    115 mp
  • Suprafață curte
    85 mp
  • Disponibilitate
    Imediat
  • Confort
    1
  • Stare interior
    Ultrafinisat
  • Număr locuri parcare
    1
  • Imobil
    Casă / Vilă
  • Stadiu construcție
    Finalizată
  • An construcție
    2024
  • Construcție nouă
    Da

Facilități

Apă
Apometre
Bucătărie deschisă
Canalizare
CATV
Centrală proprie
Contor electric
Contor gaz
Curent
Curte
Debara
Dressing
Faianță
Ferestre PVC
Gaz
Geamuri tripan
Gresie
Iluminat stradal
Încălzire prin pardoseală
Internet
Izolație exterioară
Mijloace de transport în comun
Nemobilat
Parcare deschisă
Parchet laminat
Scară interioară
Străzi asfaltate
Telefon
Cont Ioana Adelina - Lionas Imobiliare
Cont Ioana Adelina
Manager

+40 742829546


Solicită chiar acum o vizionare
Telefon
Sună acum Solicită vizionare
Necesare:

Site-ul nu poate funcționa corect fără aceste cookie-uri. Vezi cookie-urile

Statistică:

Strângem statistici anonime despre voi, vizitatorii unici, pentru a vă îmbunătăți experiența dumneavoastră. Vezi cookie-urile

Marketing:

Pentru a ne promova mai eficient serviciile noastre, folosim cookies pentru a vă identifica și a vă oferi proprietăți și servicii personalizate. Vezi cookie-urile

Acest site folosește cookies, află detalii. Alege ce tipuri de cookies dorești să permitem: