ID CP2066620

2 Case in Duplex 4 camere 125 mp-curte-terasa 37 mp -garaj-Tauti

ID CP2066620

250,000 € (negociabil)

Casă / Vilă cu 4 camere de vânzare
Tauti
125 mp
2024

Va oferim spre vanzare 2 case cu 4 camere situata pe un teren propriu in Tauti, la distanta de 4 km de Floresti si 14 km de Cluj-Napoca.

Casele sunt de o calitate foarte buna, design modern, situata intr-o zona linistita.

Au urmatoarele caracteristici:

- regim de inaltime S+P+1E

- se vinde la stadiul de semifinisat

- suprafata casei este de 125 mp utili

- suprafata curtii este de 270 mp

- terasa cu suprafata de 37,5 mp

- dispune de un balcon cu suprafata de 8,77 mp

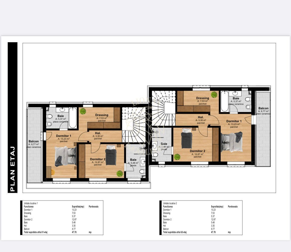
- ambele dormitoare sunt prevazute cu baie proprie

- bucatarie open-space cu living de aprox. 32 mp

- garaj cu suprafata de 36,68 mp, potrivit pentru 2 masini

Compartimentare:

Subsol: garaj, spatiu tehnic, casa scarii

Parter: bucatarie open-space cu living, birou, baie, hol, casa scarii, spatiu amenajat (terasa)

Etaj: 2 dormitoare, 2 bai, dressing, hol, balcon

- incalzire prin pardoseala

- tamplarie PVC cu geam termopan

- izolatie exterioara

Pentru mai multe detalii sau pentru programarea unei vizionari, va stam cu drag la dispozitie,

Echipa LIONAS Imobiliare!

Citește mai mult

  • Număr camere
    4
  • Dormitoare
    2
  • Număr bucătării
    1
  • Număr băi
    3
  • Număr balcoane
    1
  • Număr terase
    1
  • Număr garaje
    1
  • Număr locuri parcare
    2
  • Disponibilitate
    Imediat
  • Tip casă
    Duplex
  • Stare interior
    Semifinisat
  • Suprafață utilă
    125 mp
  • Suprafață construită
    165 mp
  • Suprafață teren
    350 mp
  • Suprafață curte
    270 mp
  • Suprafață terasă
    37.5 mp
  • Stadiu construcție
    Finalizată
  • An construcție
    2024
  • Construcție nouă
    Da
  • Număr etaje clădire
    1
  • Număr subsoluri
    1

Facilități

Acoperiș
Apă
Apometre
Bucătărie deschisă
Canalizare
CATV
Centrală proprie
Contor electric
Contor gaz
Curent
Curte
Dressing
Ferestre PVC
Garaj
Gaz
Geamuri termopan
Iluminat stradal
Încălzire prin pardoseală
Internet
Izolație exterioară
Mijloace de transport în comun
Nemobilat
Scară interioară
Străzi asfaltate
Telefon
Ușă intrare PVC
Mihaela Ungureanu - Lionas Imobiliare
Mihaela Ungureanu
Agent imobiliar

0755455548


Solicită chiar acum o vizionare
Telefon
Sună acum Solicită vizionare
Necesare:

Site-ul nu poate funcționa corect fără aceste cookie-uri. Vezi cookie-urile

Statistică:

Strângem statistici anonime despre voi, vizitatorii unici, pentru a vă îmbunătăți experiența dumneavoastră. Vezi cookie-urile

Marketing:

Pentru a ne promova mai eficient serviciile noastre, folosim cookies pentru a vă identifica și a vă oferi proprietăți și servicii personalizate. Vezi cookie-urile

Acest site folosește cookies, află detalii. Alege ce tipuri de cookies dorești să permitem: