ID CP2691014

Teren 551mp cu Proiect Resort exclusivist-panorama lac Colibita

ID CP2691014

25,000 €

Teren de 551 mp de vânzare
Colibita
551 mp

COMISION 0%! Va oferim spre vanzare un teren cu proiect autorizat de constructie cabana moderna ce face parte din Resortul montan de cabane- ALPINA 6 COLIBITA, cu panorama la lac in Colibita.

Colibita reprezinta o oportunitate excelenta de investitie in turism, zona fiind cu potential in continua crestere pe tot parcursul anului, indiferent de sezon.

- suprafata terenului este de 551 mp (suprafata poate diferi usor in functie de configurarea terenului)

- priveliste panoramica spre lac si munti

- utilitati: apa si curent

- sunt disponibile 3 parcele de teren, fiecare cu proiect autorizat pentru cabana moderna din lemn

Detalii cabana :

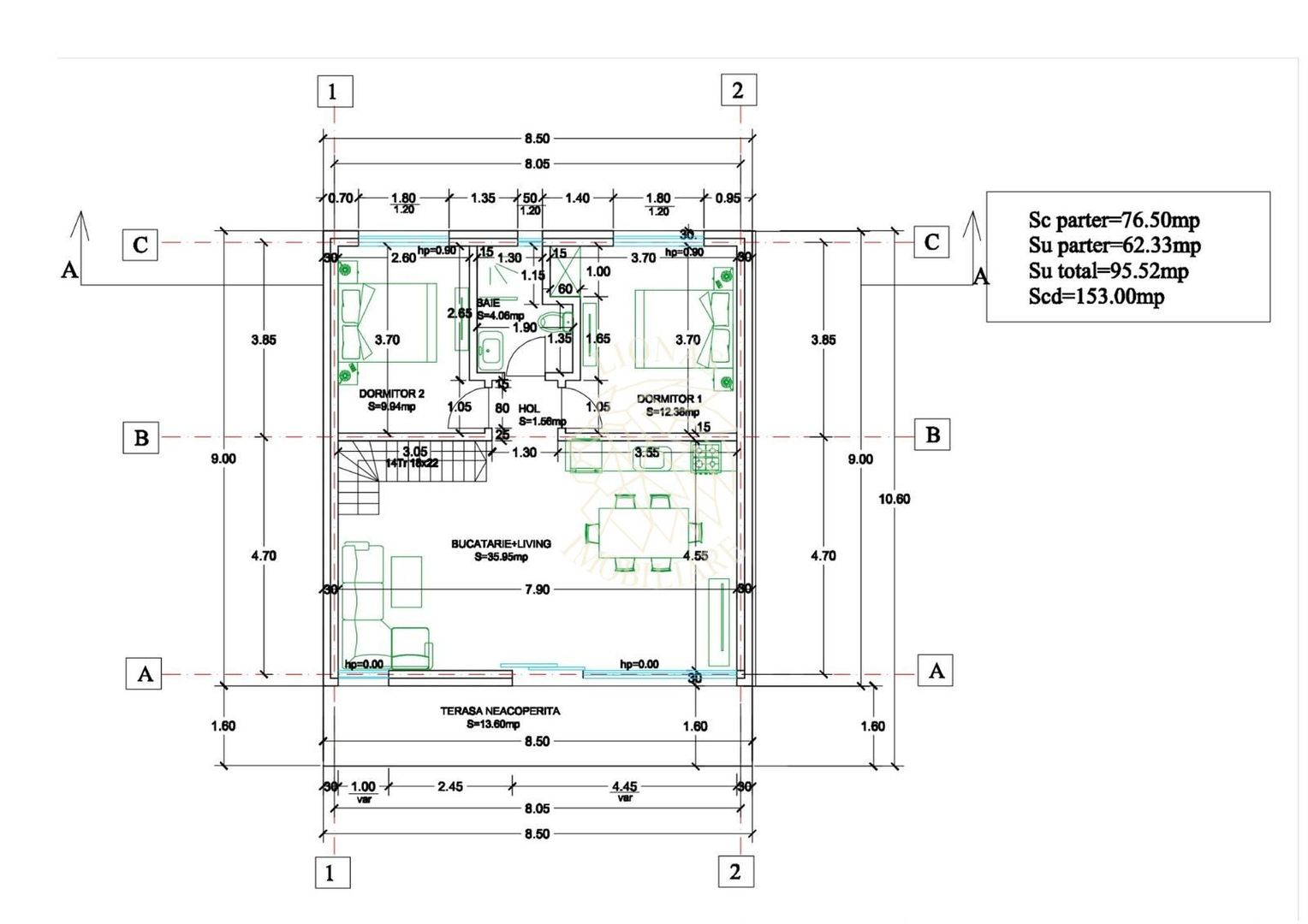
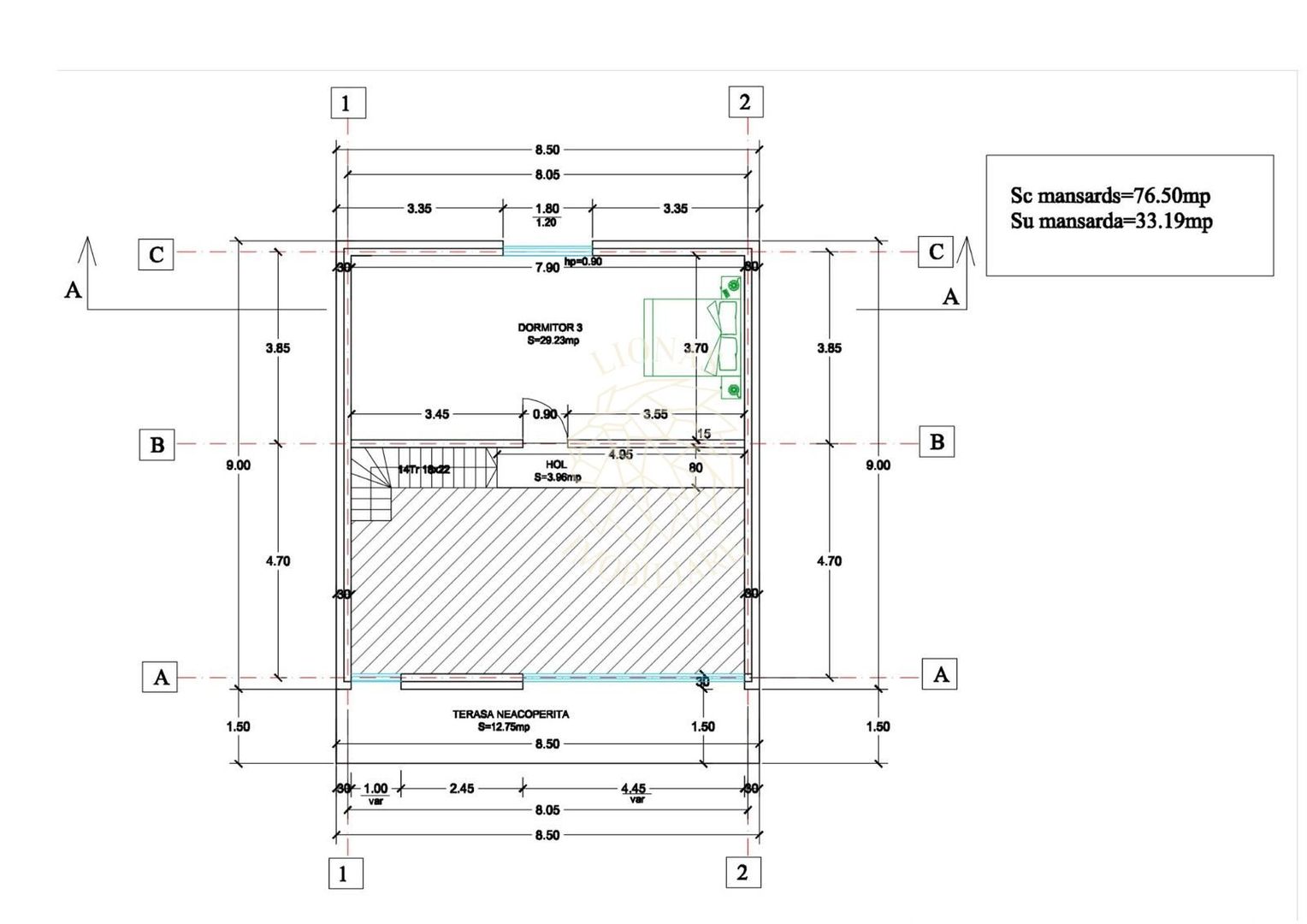
- design Asimetric Nordic, regim constructie parter + mansarda

- suprafata de 111,35 mp desfasurati cu teresa inclusa, din care 100,38 mp utili

- terasa cu suprafata de 13,60 mp

- priveliste panoramica deosebita dinspre fiecare cabana

- zona linistita, retrasa si ideala pentru o adevarata relaxare

Compartimentare:

- la parter living open space cu tavan inalt + bucatarie si loc de luat masa

- 2 dormitoare, baie, hol, terasa

- mansarda un dormitor cu suprafata de 30 mp

La cerere se poate construi cabana conform proiectului autorizat.

Fotografiile sunt reprezentarea a modului in care va arata cabana autorizata in proiect.

COMISION 0%!

Pentru mai multe detalii sau pentru programarea unei vizionari, va stam cu drag la dispozitie,

Sorin Cont 0732008845

Echipa LIONAS Imobiliare!

Citește mai mult

  • Tip teren
    Construcții
  • Suprafață teren
    551 mp
  • Front stradal
    27.0 m
  • Deschidere la
    Drum de servitute
  • Clasificare
    Intravilan
  • Disponibilitate
    Imediat
  • Autorizație de construcție
    Da
  • Certificat de urbanism
    Da
  • Număr etaje clădire
    1
  • Are mansardă
    Da

Facilități

Acces auto
Apă
Curent
Oportunitate de investiții
Vedere panoramică
Vedere spre lac
Vedere spre munte
Cont Ioana Adelina - Lionas Imobiliare
Cont Ioana Adelina
Manager

+40 742829546


Solicită chiar acum o vizionare
Telefon
Sună acum Solicită vizionare
Necesare:

Site-ul nu poate funcționa corect fără aceste cookie-uri. Vezi cookie-urile

Statistică:

Strângem statistici anonime despre voi, vizitatorii unici, pentru a vă îmbunătăți experiența dumneavoastră. Vezi cookie-urile

Marketing:

Pentru a ne promova mai eficient serviciile noastre, folosim cookies pentru a vă identifica și a vă oferi proprietăți și servicii personalizate. Vezi cookie-urile

Acest site folosește cookies, află detalii. Alege ce tipuri de cookies dorești să permitem: